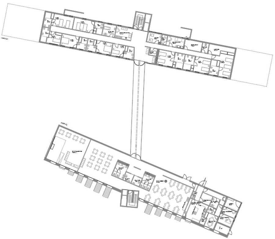
Requalificação Lar de Idosos
O estudo/projecto de arquitectura previa a ampliação, criando nove novos quartos, todos equipados com amplas instalação sanitária e obedecendo as exigências da mobilidade condicionada. Com a criação destas novas dependências ampliou-se a capacidade do la em mais 20 utentes. Por outro lado requalificou-se todos os quartos já existentes criando/rectificando novas instalações sanitárias e cada quarto e redimensionando cada quarto de acordo com as melhores praticas e respeitando as exigências legais.
As alterações propostas pelo projeto de arquitetura chocavam coma estrutura portante existente, havendo portanto necessidade de reforçar pilares/vigas, criar novos pórticos e fazer novas comunicações verticais entre pisos, (caixas de escadas e elevadores). Todas estas alterações teriam de ser levadas a cabo numa estrutura com mais de 40 anos.
Por outro lado e dado que as infraestrutura de telecomunicações, electricidade, redes de abastecimento de água, rede e saneamento de água, entre outras, já se encontravam obsoletas e com as alterações propostas no projecto de arquitectura seriam alvo de uma grande transformação, optou-se por criar novas redes, mais modernas e preparadas para uma melhor resposta aos seus utilizadores, quer no imediato quer no horizonte do projecto.
Assim sendo, ao nível das telecomunicações foram criadas novas redes de cablagens, com ligações em fibra óptica entre bastidores e equipamentos, pontos de ligação wireless e um novo sistema de armazenagem de informação centralizado. A rede eléctrica também foi executada de raiz, colocaram-se novos quadros eléctricos, novos caminhos de cabos, novas aparelhagens e toda a iluminação foi repensada e alterada para equipamentos de baixo consumo de energia. Cumprindo-se assim toda a legislação actual bem como as exigências mínimas de luminância para este tipo de edifícios. As redes hidráulicas foram todas criadas de raiz havendo o cuidado de isolar termicamente toda a rede de água quente de forma a melhor o desempenho energético e a diminuição do consumo de energia. A rede de drenagem das águas residuais também foi preparada para receber todos os novos equipamentos entretanto colocados.
Mas a melhora mais significativa e que mais valoriza este edifício, foi a criação de um novo sistema de segurança. Preparando-o para de forma activa detectar qualquer situação anómala e dar uma resposta o mais célere e eficiente possível, sempre com o intuito de manter em segurança todos os utilizadores deste empreendimento.
Em suma, com a intervenção levada a cabo, o lar de idosos ficará preparado para dar uma melhor resposta a todos os seus utentes, criando um novo ambiente de bem-estar e segurança.
Reforço da estrutura portante do edifício com recurso a estrutura metálica.
Criação de novas comunicações verticais no edifício, nomeadamente novas escadas e novos elevadores, mais amplos.
Utilização dos tectos falsos para criar zonas técnicas de apoio à passagem de todas as redes do edifício.
Novos corredores interiores, com mais iluminação.