Salão de Cabeleireiro e Estética
eFACE - Estudos & Projetos
Profissional habitissimo | Publicado em 16/11/2016
A operação urbanística solicitada pelo Dono da obra era a do licenciamento da instalação de um salão de beleza – cabeleireiro e estética.
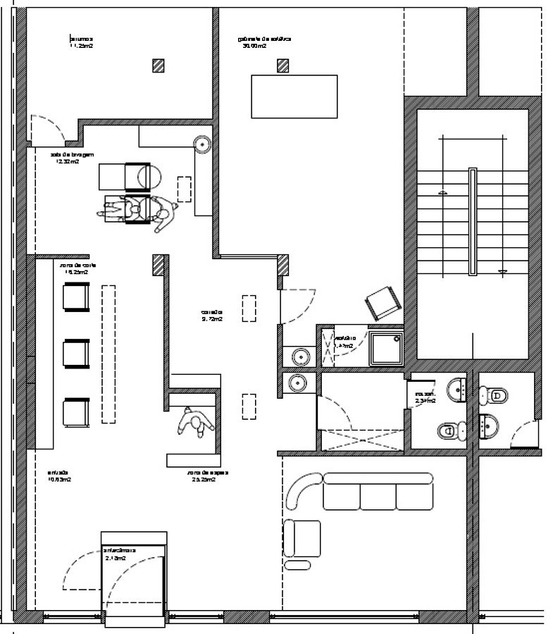
O projecto de arquitectura contemplava uma ampla sala de espera, uma zona de lavagem e corte, sala de estética e zonas de armazém. A execução da arquitectura teve particular importância no desenvolvimento da decoração interior.
Os projectos de engenharia que mereceram especial cuidado, foram os das redes de abastecimento e drenagem das águas, dado as novas peças abastecer e a drenar, sabendo da limitação das corretes existentes.
O projecto de climatização e renovação do ar interior, (AVAC), também foi cuidadosamente abordado, uma vez que o Dono da obra pretendia um excelente conforto térmico na zona da estética e sala de corte, assegurando uma eficaz renovação de ar e uma óptima temperatura interior.