Casa da Té

Ema Castro Alves
Profissional habitissimo | Publicado em 21/03/2021
A estrutura da casa original foi mantida por forma a proceder-se a um restauro integral, atribuindo a esta previamente clássica casa, uma imagem moderna, sem subestimar a contenção dos custos associados.
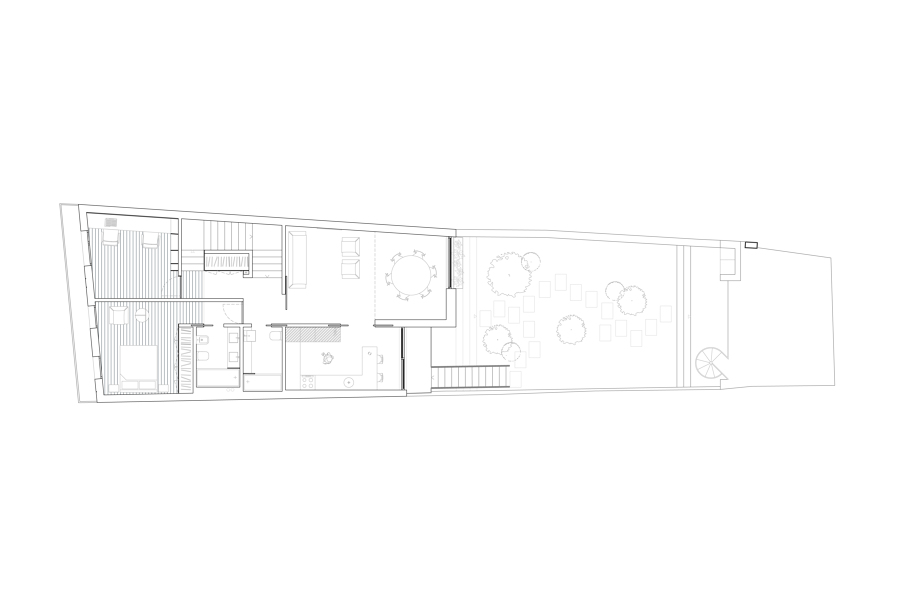
A intenção dos clientes foi a de orientar o rés do chão da casa para atividades semi públicas e destinar o restante espaço, com o acrescento de um piso recuado, para habitação.
Deste modo, os espaços mais públicos ficaram no piso 1, tal como a sala de estar, cozinha e wc de serviço, além do quarto principal, e dois quartos + wc's foram projetados para o novo piso recuado, podendo aproveitar de vistas sobranceiras sobre a cidade desde os terraços privados afetos a cada um dos quartos.
Existe ainda um jardim nas traseiras da casa que dá acesso a um anexo, com a finalidade de servir de estúdio de música para os dois filhos. Sobre este, reaproveita-se um antigo terraço de cobertura, excelente espaço de descontração e refúgio.




